Skip To Content

36419 E Ridge Road

The Sea Ranch, CA 95497
  • $1,050,000
  • STATUS: Active
  • ON SITE: 94 Days
  • ID#: 325067989
UPDATED: 11 min ago
$1,050,000
  • 1
    BEDS
  • 0.28
    ACRES
  • 2
    BATHS
  • 0
    1/2 BATHS
  • 1,376
    SQFT
  • $763
    $/SQFT
Neighborhood:
Type:
Single-Family Home
Built:
1979
County:
Area:

School Ratings & Info

Description

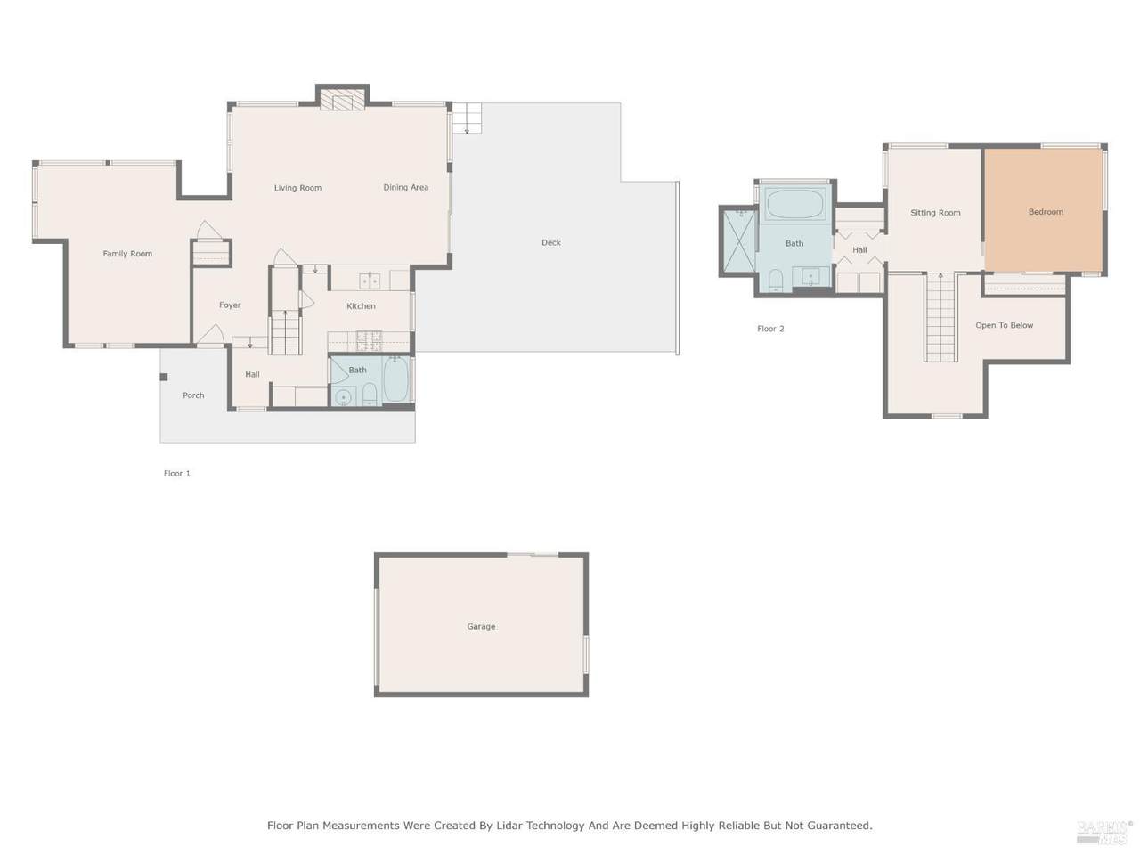
Live the dream with this 2-story home that stands in the company of the redwoods. Become a spectator from your deck with views of the forests flora and fauna that go well beyond the property line. The cozy gas fireplace warms the open floor plan between the kitchen, dining and living room. In addition to this one bedroom and two bath home, two additional rooms were added in 2011-2015. These rooms are there for your interpretation for office or play. A new roof was installed in 2020. This home is in excellent condition and features clear heart redwood interior in the original sections, with redwood trim masterfully blended throughout the whole house. New flooring in the stairwell and upper level are the most recent upgrades. The skylights are strategically located throughout to allow for filtered sunlight. Embrace this tranquil setting that whispers its song through the trees and leaves. A short hike will take you to the Hot Spot along the Gualala River for a splendid kayaking adventure, (see list of items included with sale of home). The Sea Ranch offers miles of beach, with hiking and bike trails. Enjoy the three recreation centers each with a pool, tennis and pickle ball courts.

Monthly Payment Calculator



Bay East ©2024. CCAR ©2024. bridgeMLS ©2024. Information Deemed Reliable But Not Guaranteed. This information is being provided by the Bay East MLS, or CCAR MLS, or bridgeMLS. The listings presented here may or may not be listed by the Broker/Agent operating this website. This information is intended for the personal use of consumers and may not be used for any purpose other than to identify prospective properties consumers may be interested in purchasing. Data last updated: 2025-11-09T22:56:45.97.
www.rescom-properties.com/homes/166634743
Print Image

36419 E Ridge Road The Sea Ranch, CA 95497

  • Price: $1,050,000
  • Status: Active
  • On Site: 94 Days
  • Updated: 11 min ago
  • ID#: 325067989
1
Beds
2
Baths
0
½ Baths
0.28
Acres
1,376
SQFT
$763
$/SQFT
1979
Built
Neighborhood:
Sea Ranch
County:
Sonoma
Area:
Sea Ranch
Property Description
Live the dream with this 2-story home that stands in the company of the redwoods. Become a spectator from your deck with views of the forests flora and fauna that go well beyond the property line. The cozy gas fireplace warms the open floor plan between the kitchen, dining and living room. In addition to this one bedroom and two bath home, two additional rooms were added in 2011-2015. These rooms are there for your interpretation for office or play. A new roof was installed in 2020. This home is in excellent condition and features clear heart redwood interior in the original sections, with redwood trim masterfully blended throughout the whole house. New flooring in the stairwell and upper level are the most recent upgrades. The skylights are strategically located throughout to allow for filtered sunlight. Embrace this tranquil setting that whispers its song through the trees and leaves. A short hike will take you to the Hot Spot along the Gualala River for a splendid kayaking adventure, (see list of items included with sale of home). The Sea Ranch offers miles of beach, with hiking and bike trails. Enjoy the three recreation centers each with a pool, tennis and pickle ball courts.
Exterior Features

Carport Spaces 0 Construction Materials Wood Driveway Sidewalks Gravel Levels Two Lot Features CornerOther Open Parking Spaces 0 Parking Features Detached Parking Total 2 Patio And Porch Features Uncovered Deck Roof Composition

Interior Features

2nd Unit Approx Sq Ft 0 Appliances DishwasherFree Standing Gas RangeFree Standing RefrigeratorMicrowaveTankless Water Heater Cooling None Fireplace Features ElectricGas Piped Fireplaces Total 2 Flooring LaminateTile Heating Fireplace(s)OtherSee Remarks Laundry Features Dryer IncludedWasher Included Main Level Dining RoomFamily RoomGarageKitchenLiving RoomStreet Entrance Room Baths Other Features Tub w/Shower OverWindow Room Dining Room Features Dining/Living Combo Room Family Room Features Skylight(s) Room Kitchen Features Pantry CabinetSynthetic Counter Room Living Room Features Deck Attached Room Master Bathroom Features BidetShower Stall(s)Soaking TubWindow Rooms Total 0 Upper Level Bedroom(s)Full Bath(s)LoftRetreat

Property Features

ADU2nd Unit No Association Amenities Beach RightsDog ParkPlaygroundPoolRecreation FacilitiesSaunaTennis CourtsTrails Association Fee 380 Association Fee Frequency Monthly Association Fee Includes SecurityWaterPool Association YN Yes Horse YN No Pool Private YN No Property Condition Updated/Remodeled Property Sub Type Single Family Residence Security Features Carbon Mon DetectorFire ExtinguisherSecurity PatrolSmoke Detector Senior Community YN No Sewer Septic System Spa Features Spa/Hot Tub Personal Spa YN Yes Subtype Description Planned Unit Develop Utilities Internet AvailablePropane Tank LeasedUnderground Utilities Water Source Public

Listing information © 2025 Bay Area Real Estate Information Services. Listing courtesy of Nancy Duncan of Liisberg & Company: 707-884-1212.


Bay East ©2024. CCAR ©2024. bridgeMLS ©2024. Information Deemed Reliable But Not Guaranteed. This information is being provided by the Bay East MLS, or CCAR MLS, or bridgeMLS. The listings presented here may or may not be listed by the Broker/Agent operating this website. This information is intended for the personal use of consumers and may not be used for any purpose other than to identify prospective properties consumers may be interested in purchasing. Data last updated: 2025-11-09T22:56:45.97.
 
https://bt-photos.global.ssl.fastly.net/bareis/1280_boomver_2_91030193-2.jpg https://bt-photos.global.ssl.fastly.net/bareis/1280_boomver_2_91030193-2.jpg https://bt-photos.global.ssl.fastly.net/bareis/1280_boomver_2_91030193-2.jpg
Logo
Linda Blair | ResCom Properties
376 First Street
Benicia CA, 94510