Skip To Content

3642 Lorena Avenue

Castro Valley, CA 94546
  • $1,799,000
  • STATUS: Pending
  • ON SITE: 16 Days
  • ID#: ML82036418
Pending
UPDATED: 28 min ago
$1,799,000
  • 3
    BEDS
  • 0.47
    ACRES
  • 2
    BATHS
  • 0
    1/2 BATHS
  • 2,350
    SQFT
  • $766
    $/SQFT
Type:
Single-Family Home
Built:
1938
County:

School Ratings & Info

School District:

Description

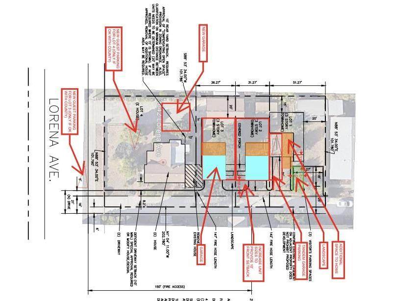
Exceptional investment & development opportunity on nearly 0.5-acre flat lot! Potential for a 4-lot subdivision Survey Completed, preliminary plans available to retain the existing home and build 3 additional detached townhomes (Like an SFH). Charming split-level home offering 4 beds & 2 baths. Main level features living/dining, kitchen & breakfast nook overlooking the spacious backyard. Upstairs has 3 bedrooms & 1 bath. Lower level includes separate entrance, den, full bath, laundry, storage & flexible space for office/wine cellar/4th bedroom great for multi-gen living or rental income. Endless possibilities: add an ADU, build a pool, park RV/boat, expand or develop. Backyard includes mature fruit trees avocado, grapefruit, Santa Rosa plum, Meyer lemon, orange & bay leaf. Prime location in Castro Valley close to downtown, shops, restaurants & BART. Rare opportunity with strong upside!

Monthly Payment Calculator



Contra Costa Association of Realtors logo Bay East ©2026. CCAR ©2026. bridgeMLS ©2026. Information Deemed Reliable But Not Guaranteed. This information is being provided by the Bay East MLS, or CCAR MLS, or bridgeMLS. The listings presented here may or may not be listed by the Broker/Agent operating this website. This information is intended for the personal use of consumers and may not be used for any purpose other than to identify prospective properties consumers may be interested in purchasing. Data last updated at 2026-03-15T22:36:08.717.

www.rescom-properties.com/homes/173386997
Print Image

3642 Lorena Avenue Castro Valley, CA 94546

  • Price: $1,799,000
  • Status: Pending
  • On Site: 16 Days
  • Updated: 28 min ago
  • ID#: ML82036418
3
Beds
2
Baths
0
½ Baths
0.47
Acres
2,350
SQFT
$766
$/SQFT
1938
Built
County:
Alameda
School District:
Castro Valley (510) 537-3000
Property Description
Exceptional investment & development opportunity on nearly 0.5-acre flat lot! Potential for a 4-lot subdivision Survey Completed, preliminary plans available to retain the existing home and build 3 additional detached townhomes (Like an SFH). Charming split-level home offering 4 beds & 2 baths. Main level features living/dining, kitchen & breakfast nook overlooking the spacious backyard. Upstairs has 3 bedrooms & 1 bath. Lower level includes separate entrance, den, full bath, laundry, storage & flexible space for office/wine cellar/4th bedroom great for multi-gen living or rental income. Endless possibilities: add an ADU, build a pool, park RV/boat, expand or develop. Backyard includes mature fruit trees avocado, grapefruit, Santa Rosa plum, Meyer lemon, orange & bay leaf. Prime location in Castro Valley close to downtown, shops, restaurants & BART. Rare opportunity with strong upside!
Exterior Features

Covered Spaces 2 Garage YN Yes Levels Two Story Lot Size Area 0.47

Interior Features

Appliances Dishwasher Basement Crawl Space Building Area Total 2350 Cooling Ceiling Fan(s) Cooling YN Yes Fireplace Features Wood Burning Fireplace YN Yes Fireplaces Total 1 Flooring ConcreteLaminate Heating Forced Air Heating YN Yes Interior Features Dining AreaFamily Room Kitchen Features Dishwasher

Property Features

Age 88 Association YN No For Sale Or Rent For Sale Listing Terms CashConventional Pool Features None Pool Private YN No Present Use 341079 Property Sub Type Single Family Residence Zoning RMX

Contra Costa Association of Realtors logo Listing courtesy of Swetha Poreddy of Alliance Bay Realty: .


Contra Costa Association of Realtors logo Bay East ©2026. CCAR ©2026. bridgeMLS ©2026. Information Deemed Reliable But Not Guaranteed. This information is being provided by the Bay East MLS, or CCAR MLS, or bridgeMLS. The listings presented here may or may not be listed by the Broker/Agent operating this website. This information is intended for the personal use of consumers and may not be used for any purpose other than to identify prospective properties consumers may be interested in purchasing. Data last updated at 2026-03-15T22:36:08.717.

 
https://bt-photos.global.ssl.fastly.net/eastbay/orig_boomver_2_52466813-2.jpg
Logo
Linda Blair | ResCom Properties
376 First Street
Benicia CA, 94510